Superficie: 160 m²
Superficie útil: 145 m²
Calefacción: NO
Año de construcción: 1937
Calificación energética: No disponible
<h3><em>LOCAL EN ALQUILER EN CALLE RICLA – 1.300 €/MES</em></h3>
Se alquila amplio local comercial situado en Calle Ricla, en una zona céntrica y bien comunicada de Zaragoza, próxima a Avenida Goya y al entorno universitario.
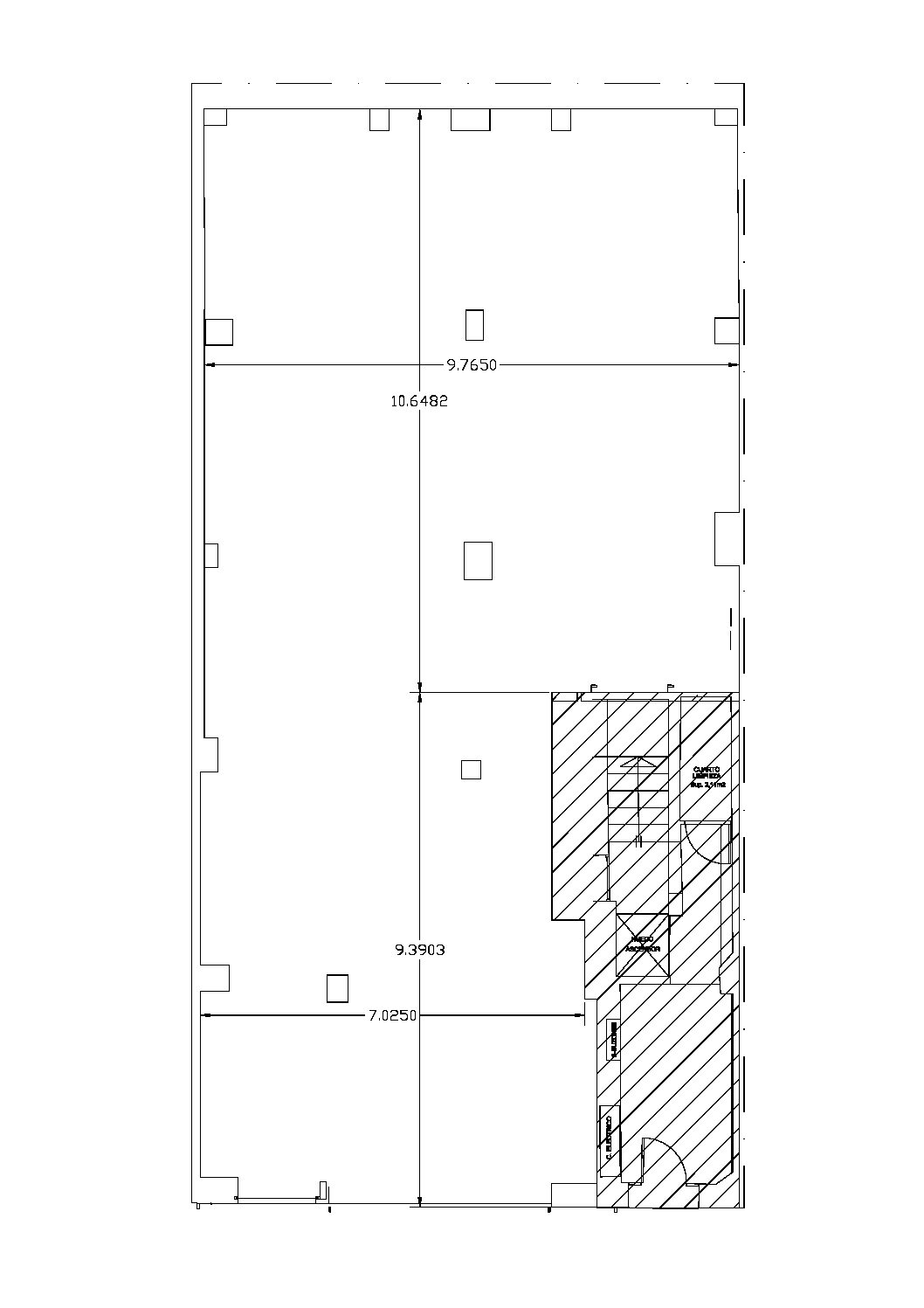
El local dispone de una superficie de 145 metros cuadrados útiles distribuidos en una planta prácticamente diáfana, lo que ofrece múltiples posibilidades de distribución según la actividad a desarrollar. Cuenta con una gran fachada a pie de calle con escaparate, lo que garantiza una excelente visibilidad.
El espacio interior presenta una estructura sólida con techos altos y vigas metálicas vistas, ideal para proyectos de reforma y personalización. Dispone de una zona preparada para baño.
<strong>La ubicación del local se verá próximamente revalorizada gracias al proyecto de transformación del antiguo colegio Jesús María, situado a escasos metros. En ese espacio se desarrollará un nuevo conjunto residencial con más de 160 viviendas y amplias zonas verdes, además de un andador peatonal que conectará toda la manzana y mejorará la accesibilidad del entorno. Esta actuación convertirá la zona en un nuevo eje urbano con mayor tránsito, actividad comercial y valor inmobiliario, ofreciendo una excelente oportunidad de inversión y crecimiento para cualquier negocio que se establezca allí.</strong>
Infórmese sin compromiso con YUS CONSULTORES.
Este sitio web utiliza cookies para que usted tenga la mejor experiencia de usuario. Si continúa navegando está dando su consentimiento para la aceptación de las mencionadas cookies y la aceptación de nuestra política de cookies, pinche el enlace para mayor información.
ACEPTAR